Casa 4F

225 m2 de diseño y confort

Sobre el proyecto

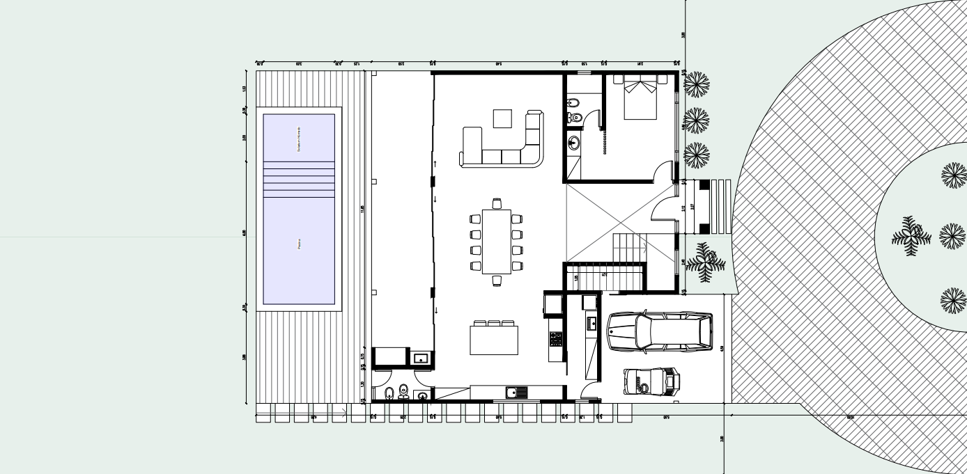
Residencia moderna que equilibra elegancia, funcionalidad y amplitud. Desde su imponente fachada hasta cada detalle interior, este proyecto fue pensado para brindar confort y estilo a cada momento del día.

Con ventanales de piso a techo que permiten una conexión natural con el exterior, y una distribución inteligente que aprovecha cada metro cuadrado, esta casa ofrece una experiencia de vida luminosa, abierta y acogedora.

El espacio techado para vehículos y el amplio patio complementan perfectamente un diseño pensado para quienes valoran tanto el diseño arquitectónico como la practicidad del día a día.

Detalles clave

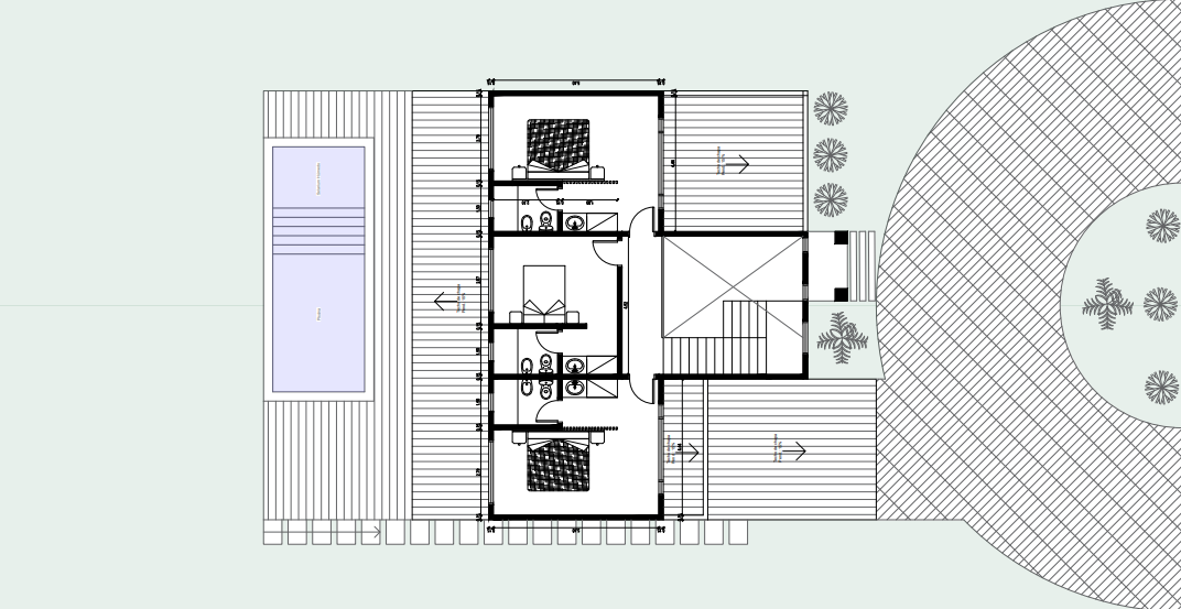
Habitaciones

4

Baños

4

Pisos

2

Área

225 m2

Patio

220 m2

Galería

Ubicación

¿Tenés en mente tu propio proyecto?

Podemos diseñar y construir desde cero lo que estás imaginando. 

+595 975 880043