Casa 9A

Simple por fuera, viva por dentro

Sobre el proyecto

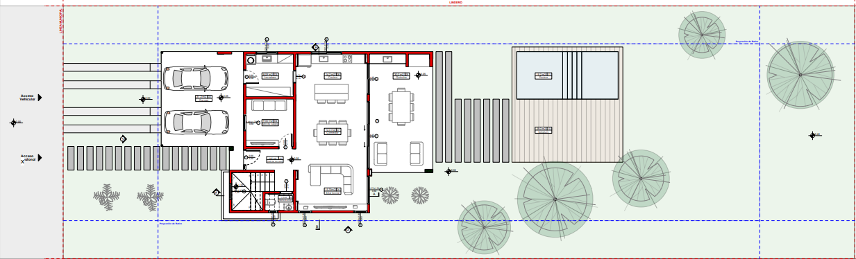
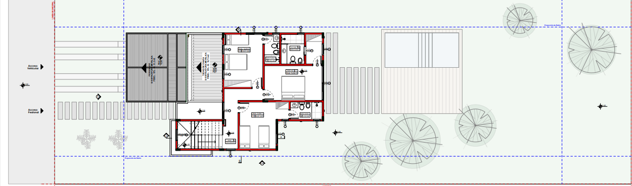
Esta vivienda destaca por su diseño vertical y fachada limpia, que prioriza la funcionalidad sin renunciar al estilo. Las ventanas altas y estrechas aportan carácter a la estructura, al mismo tiempo que optimizan la iluminación interior.

La planta baja se abre completamente hacia el jardín, integrando la galería y la piscina en un solo ambiente social ideal para disfrutar en familia o con amigos. Una propuesta moderna, eficiente y bien conectada con su entorno natural.

Detalles clave

Habitaciones

3

Baños

4

Pisos

2

Área

261 m2

Patio

630 m2

Galería

Ubicación

¿Tenés en mente tu propio proyecto?

Podemos diseñar y construir desde cero lo que estás imaginando. 

+595 975 880043